
农村自建房历经了岁月的洗礼,从传统中脱离,逐步走向现代化和欧式化。时代进步之后,人们又渴望走向传统,越是陈旧的建筑,复古的风格更耐人寻味。当然现在农村自建房不仅仅是重塑传统形式,更结合了现代建筑元素,......
农村自建房历经了岁月的洗礼,从传统中脱离,逐步走向现代化和欧式化。时代进步之后,人们又渴望走向传统,越是陈旧的建筑,复古的风格更耐人寻味。当然现在农村自建房不仅仅是重塑传统形式,更结合了现代建筑元素,打造适合现代生活的栖息之所。

新中式风格的别墅,保留了中式建筑中的经典元素,融入了现代建筑美学结构。简约中追求古典美的审美追求。

中式建筑黑白搭配是最淳朴的神韵。立面的多创设计,低调中彰显户型的丰富性和功能性,保证了室内的采光。

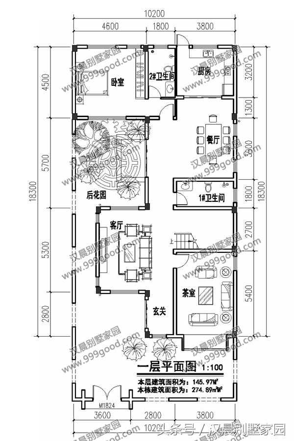
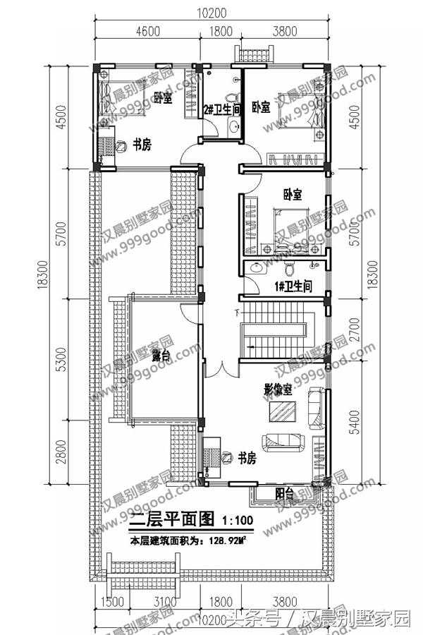
平面功能说明:
图纸编号:TC2102
建筑面积:274.893㎡
占地面积:145.97㎡
规格:10.2米米
建造预算:25万

中式建筑的户型最好是有一个院子,才比较好看。入户有玄关,不像欧式大门比较霸气,中式风格讲究是含蓄内敛。院中有花园,园中有景。

室内的交通比较简单,各区间靠东西两面布置,与室外有很好的互动性,增加通风采光率。
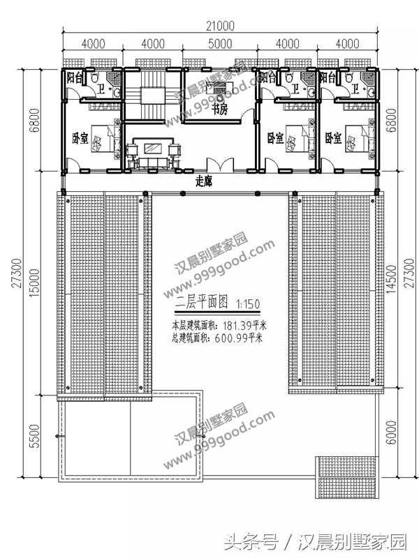
再来一栋中式三合院别墅:
图纸编号:TC2103
建筑面积:600.99㎡
占地面积:419.60㎡
规格:21米米
建造预算:54万

农村一般都前篇一律的坡顶设计,都产生了审美疲劳。此栋户型用的是歇顶,非常洋气时尚有复古!

院子外三大车库,再也不用担心您的爱车没地方放了。

平面设计说明:
超豪华的一层三合院别墅,局部二层。入户门厅私密性超好,超大的院子成为户型的中心,各个功能区间围绕院子而设。

